
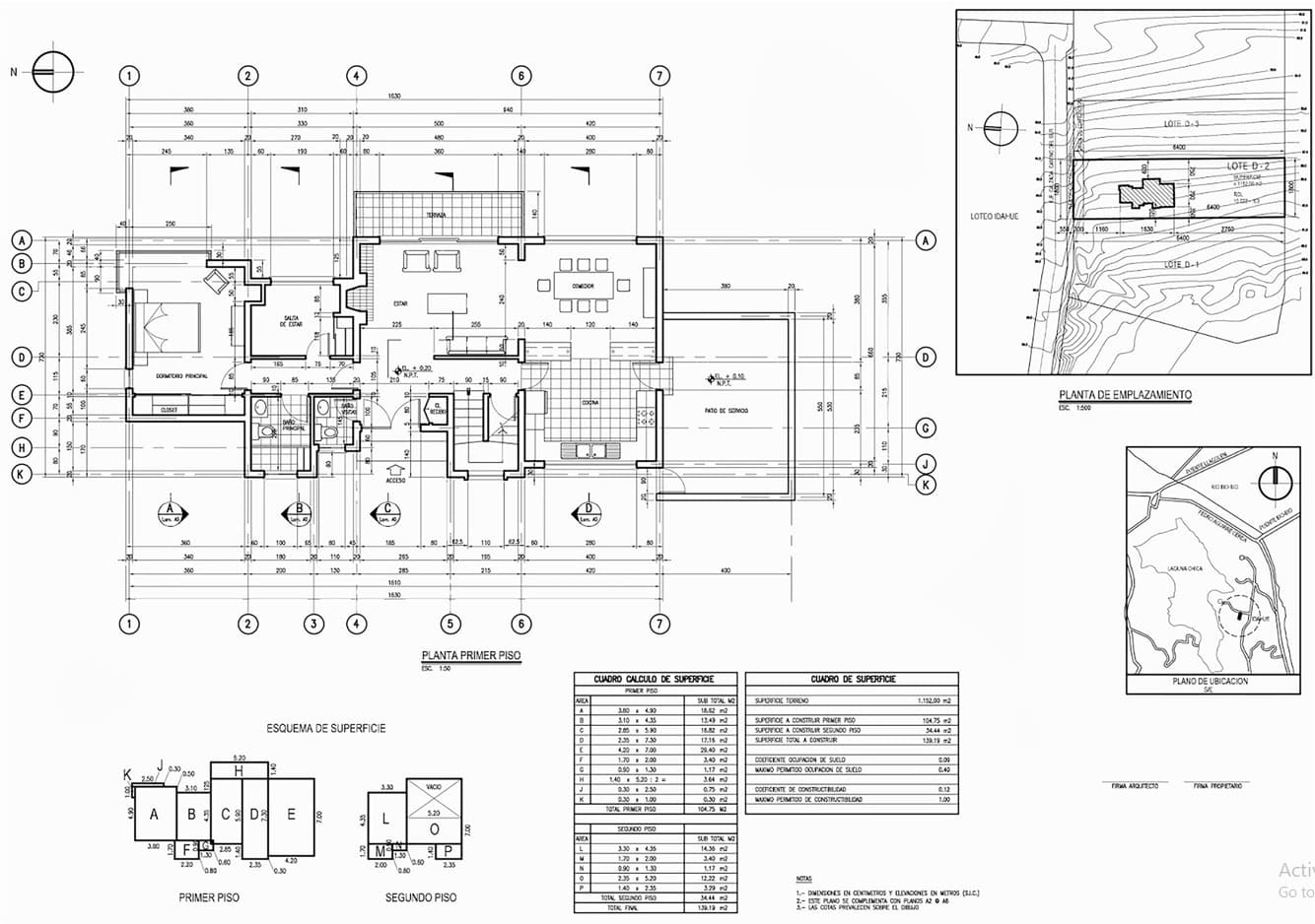
Từ bản vẽ tay hoặc bản vẽ giấy cũ, chuyển đổi chúng sang định dạng CAD. Giúp khai thác hiệu quả những thông tin thiết kế quý giá được tạo ra trong quá khứ bằng công nghệ hiện đại. Việc số hóa các bản vẽ cũ không chỉ giúp tái sử dụng và cập nhật dễ dàng hơn mà còn góp phần nâng cao độ chính xác trong thiết kế.


Trên cơ sở thiết kế, yêu cầu cơ bản từ khách hàng, chúng tôi hỗ trợ triển khai bản vẽ từ bản vẽ kiến trúc (bố trí tổng thể, mặt bằng, mặt cắt, mặt đứng, chi tiết cấu tạo, trần), đến bản vẽ kết cấu (mặt bằng dầm sàn, khung kết cấu) và bản vẽ hỗ trợ thi công như chi tiết móng, bản vẽ cốt thép các cấu kiện, bản vẽ shop… mang đến những bản vẽ chính xác và có tính thực tiễn cao.
Quy trình làm việc chuyên nghiệp mang đến những bản vẽ chính xác và có tính thực tiễn cao
Thu thập và phân tích bản vẽ tay, yêu cầu thiết kế cơ bản từ khách hàng
Chuyển đổi bản vẽ giấy sang định dạng CAD với độ chính xác cao
Triển khai chi tiết cấu tạo, bổ sung thông tin kỹ thuật cần thiết
Kiểm tra chất lượng và bàn giao bản vẽ hoàn chỉnh có tính thực tiễn cao